OP22
Penthouse am See. 2003

Zur Galerie


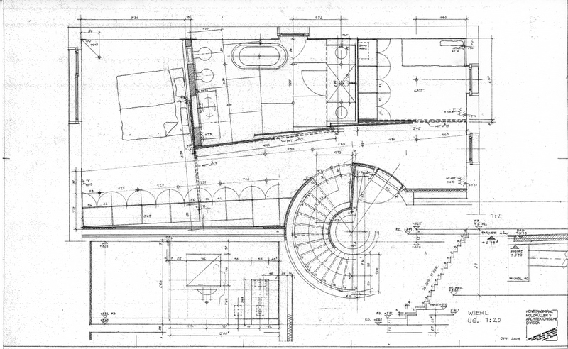
Die Aufgabe war, den üblichen Vorschlag eines Bauträgers für eine zwei-etagige Penthousewohnung zu verbessern. Stolz bin ich auf die Lösung des Untergeschosses, in welchem Schlafzimmer, Schrankraum und Bad liegt. Hier wurde mittels raumhoher Schiebewände die ursprünglich geplante „Gänglelösung“ vermieden.